0115 9371 713
Estate & letting agent based in Keyworth

Summerwood Lane, Clifton, Nottingham

£215,000

3 Bedrooms / 2 Bathrooms / 2 Reception

  • Family Home
  • Beautifully Extended
  • Master Bedroom with En-Suite
  • Two Reception Rooms
  • Perfect For Various Buyers
  • West Facing Garden
  • Combination Boiler
  • Sought After Road in Clifton

30 photos

  • Facebook  Twitter  Google +  Pinterest

GUIDE PRICE ** £215,000 - £220,000 **

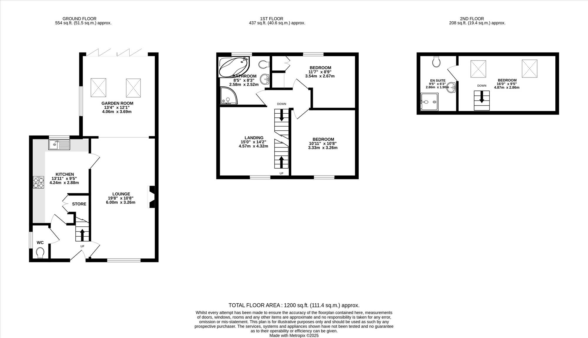
Benjamins welcome to the market this spacious three bedroom mid-terraced property featuring a beautiful garden room extension and converted loft space to create a master bedroom with en-suite, private rear west facing garden in the popular Clifton area.

In brief the accommodation comprises of; entrance hall, a breakfast kitchen, spacious lounge with a feature fireplace, and garden room extension. To the first floor there are two well proportioned bedrooms and a family bathroom. To the second floor is the master bedroom with walk in shower en-suite.
Outside, there is off road parking for two cars with an enclosed landscaped west facing private garden to the rear with brick storage shed.

Located within close proximity to a range of local amenities including but not limited to; primary and secondary schools, Morrison's supermarket, Lidl, Clifton Market, pubs, restaurants and convenience stores.
Public transport is well catered for by regular bus and tram service while commuter access to the A453, (M1, M42) and A52 is excellent.

If you would like to view, please call Benjamins on 01159 371713.

Entrance Hall
UPVC double glazed front door, UPVC double glazed window to the front aspect, electric radiator, tiled flooring, single ceiling light pendant.
Access into; downstairs WC and kitchen.

Kitchen
UPVC double glazed window to the rear aspect, a range of wall and base units with ... worktops, five ring gas CDA burner, CDA microwave and electric oven, CDA integrated dishwasher, stainless steel sink with grove drainer and mixer tap over, space for fridge/freezer, plumbing for washing machine, understairs storage cupboard, tiled flooring, spotlight ceiling pendants.
Access into;

Living Room
UPVC double glazed bay window to the front aspect, column radiator, feature gas coal fire, carpet to flooring, dual wall light pendants, dual ceiling light pendants, ceiling fan.

Garden Room
UPVC double glazed allium bi-folding doors, UPVC double glazed dual velux windows, UPVC double glazed window to the side aspect, radiator, wood effect flooring, three hanging pendants, spotlight ceiling pendants.

Downstairs WC
UPVC double glazed window to the side aspect, comprising of; low level WC, tiled flooring and single ceiling light pendant.

Landing
UPVC double glazed window to the front aspect, radiator, carpet to flooring, single ceiling light pendant, spotlight ceiling pendants.
Access into; second bedroom, third bedroom, family bathroom and stairs to second floor accommodation.

Master Bedroom
UPVC double glazed dual velux windows to the rear aspect, space for double bed, fitted units, eaves storage, carpet to flooring, dual wall light pendants, spotlight ceiling pendants.
Access into;

En-Suite
Walk in shower room fitted with a three piece suite comprising of; low level WC, wash hand basin, walk in shower with attachment over, tiled flooring, spotlight ceiling pendants.

Second Bedroom
UPVC double glazed window to the front aspect, space for a double bed, radiator, carpet to flooring, single ceiling light pendant.

Third Bedroom
UPVC double glazed window to the rear aspect, space for a double bed, fitted wardrobe housing a combination boiler, radiator, carpet to flooring, single ceiling light pendant.

Family Bathroom
UPVC double glazed window to the rear aspect, four piece white suite comprising of; low level WC, wash hand basin with fitted units, LED mirror with bluetooth speaker, Jacuzzi bathtub, shower tray with attachment over, heated hand towel rail, wood effect flooring, spotlight ceiling pendants.

Priavte Rear Garden
Access via the garden room, leading onto mainly laid to lawn, patio area and steps, west facing aspect, outside tap, brick built shed.

Agents Notes
DISCLAIMER
These sales particulars have been prepared by Benjamins at the instruction of the vendor. Please be aware that any services, equipment, or fittings referred to have not been tested, and as such, no guarantees or warranties are provided. Prospective purchasers are advised to carry out their own investigations regarding these aspects. While every effort has been made to ensure the accuracy of the information provided, including internal measurements (which are approximate), these particulars are offered in good faith and do not form part of any contract. All reasonable care has been taken to exclude any fixtures belonging to the vendor from the description of the property. However, the sale is subject to the vendor's right to remove, or request payment for, any such items, whether or not they are specifically mentioned in these details.

THIRD PARTY REFERRALS
Benjamins have established professional relationships with Ives and Co Solicitors, Rothera Bray Solicitors and Premier Mortgage Services and as such we refer clients to them for relative services. We receive a referral fee of £75.00-£200.00 for these recommendations. Further details are available on request.

MONEY LAUNDERING
As with all Estate Agents, Benjamins is subject to Money Laundering Regulations 2017 and will require all successful purchasers to provide two forms of identification for example a valid photocard driving licence or passport and recent utility bill (further identification may be requested if required) before solicitors are instructed by us. For further information please contact us

Reference: SS001882


Disclaimer

These particulars are intended to give a fair description of the property but their accuracy cannot be guaranteed, and they do not constitute an offer of contract. Intending purchasers must rely on their own inspection of the property. None of the above appliances/services have been tested by ourselves. We recommend purchasers arrange for a qualified person to check all appliances/services before legal commitment.

Members
FREE instant valuation
Get your instant valuation!