0115 9371 713
Estate & letting agent based in Keyworth

Fairway, Keyworth, Nottingham

£350,000

4 Bedrooms / 2 Bathrooms / 2 Reception

  • Four Bedroom Semi-Detached
  • Extended Property
  • Modern Open Plan Kitchen Dining / Utility
  • Living Room with Log Burner
  • Main Bedroom with En-suite
  • Large Garden with Bar Area
  • Garage with Light & Power
  • Close to Local Amenities

32 photos

  • Facebook  Twitter  Google +  Pinterest

** £350,000 Guide Price **

Benjamins are delighted to bring to market this well presented and much improved extended family home. The property is a FOUR bedroom semi-detached property situated in a well-established and popular residential village of Keyworth. With convenient location within walking distance to the local amenities including, shops, schools, sports facilities and public transport services.

Benefiting from many features, including; Extended kitchen diner and utility room to the rear, living room with log burner and fantastic entertaining area and bar to the rear of the garden.

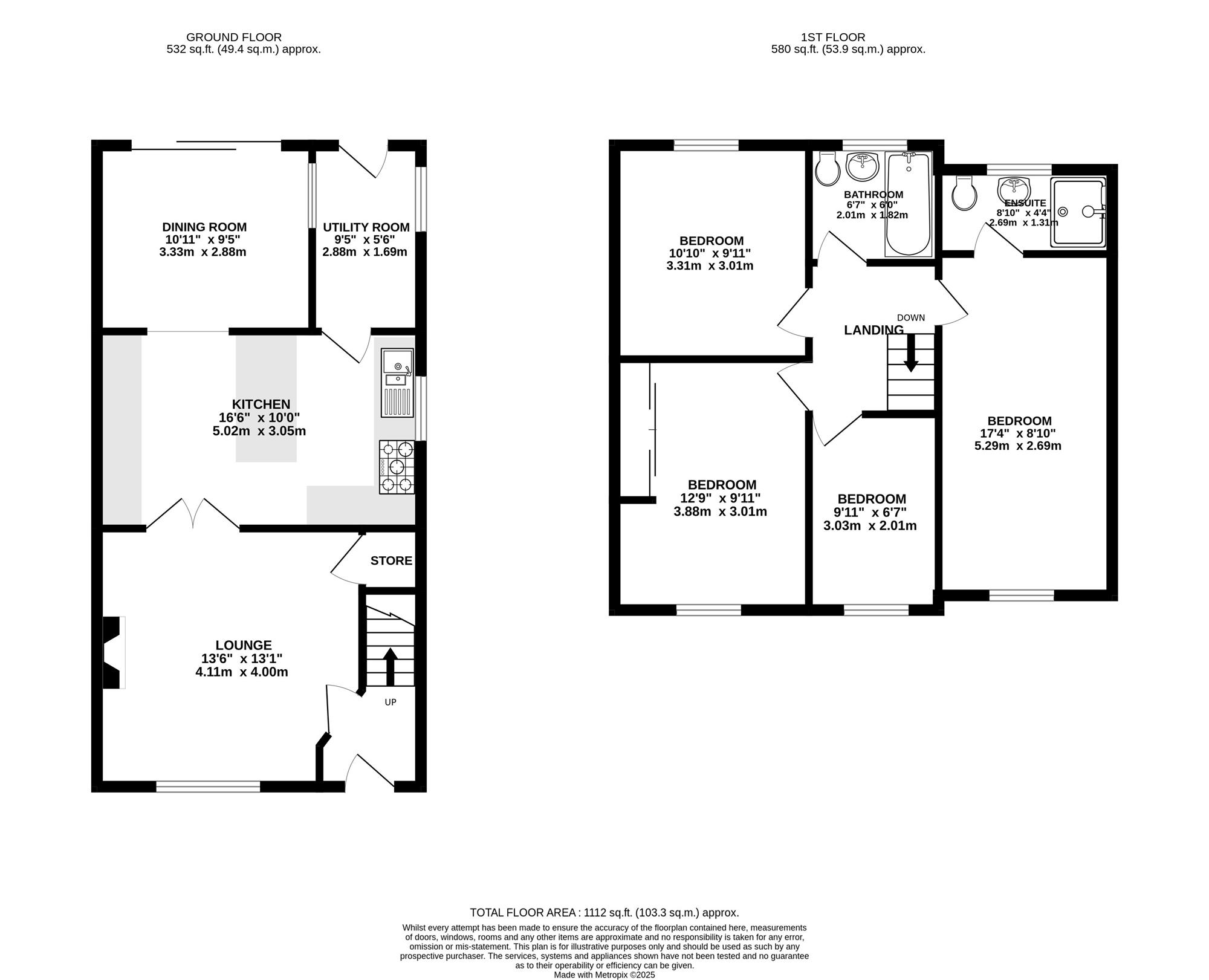
The property briefly comprises; Entrance hallway, living room to the front aspect with double doors to the kitchen diner and utility room. Upstairs is the main bedroom with en-suite, two further double bedrooms, single fourth bedroom and a family bathroom. Large private garden to the rear with patio seating, lawn and bar & entertaining decked space to the top. There is a garage and paved driveway at the front and side of the property with carport.

VIEWING HIGHLY RECOMMENDED

Entrance Hallway
Stairs to the first floor landing, white upright radiator and door into the living room.

Living Room 4.11m (13' 6") x 4.00m (13' 1")
UPVC double glazed window to the front aspect, log burner and feature panelling behind, radiator, carpet to floor, ceiling light fitting and double doors into the kitchen diner.

Kitchen Diner 5.02m (16' 6") x 3.05m (10' 0")
The kitchen has been fully renovated to a high standard, wall, base and drawer units, breakfast bar island seating area with lighting over, black composite sink with mixer tap over, integrated fridge, five ring gas hob with extractor above and built in CDA double oven, integrated dishwasher, white upright radiator, ceiling spotlights and window to the side aspect.

Dining Area 3.33m (10' 11") x 2.88m (9' 5")
Patio door onto the rear garden, space for table and chairs, window into the utility room, radiator & ceiling light fitting.

Utility 2.88m (9' 5") x 1.69m (5' 7")
Window to the side aspect, space for washing machine and tumble drier, worktop and coat hanging space. Built in cupboard housing combi boiler. Door onto the rear garden.

First Floor Landing
Stairs from the hallway to the first floor landing, having access to the loft, ceiling light fitting, wooden doors to all bedroom & bathroom.

Bedroom One 5.29m (17' 4") x 2.69m (8' 10")
UPVC double glazed window to the front aspect, access to loft, radiator, two pendant ceiling light fittings, carpet to floor & door into the en-suite.

En-Suite Bathroom 2.69m (8' 10") x 1.31m (4' 4")
UPVC double glazed window to the rear aspect, shower cubicle with mains shower, hand wash basin with drawers below & towel rail radiator.

Bedroom Two 3.88m (12' 9") x 3.01m (9' 11")
UPVC double glazed window to the front aspect, fitted wardrobes, radiator, ceiling spotlights & carpet to floor.

Family Bathroom 2.01m (6' 7") x 1.82m (6' 0")
White three piece suite with bath and shower over, hand wash basin with storage cupboard below, mixer tap, frosted UPVC double glazed window to the rear aspect, tiled flooring and towel rail radiator.

Bedroom Three 3.31m (10' 10") x 3.01m (9' 11")
UPVC double glazed window to the rear of the property, fitted wardrobes, radiator, light fitting, carpet to floor.

Bedroom Four 3.03m (9' 11") x 2.01m (6' 7")
Having Upvc double glazed window to the front of the property, radiator, light fitting , carpet to floor

Rear Garden
The fully enclosed garden features a patio area leading to a raised lawn, a variety of mature shrubs and flower beds, a summer house, garden shed, and to the rear, a raised decking area with built in bar and seating, perfect for entertaining.

Garage
Having up and over doors, power and lighting, access from carport.

Council Tax
Rushcliffe Borough Council - Tax Band C

Agents Notes
DISCLAIMER
These sales particulars have been prepared by Benjamins at the instruction of the vendor. Please be aware that any services, equipment, or fittings referred to have not been tested, and as such, no guarantees or warranties are provided. Prospective purchasers are advised to carry out their own investigations regarding these aspects. While every effort has been made to ensure the accuracy of the information provided, including internal measurements (which are approximate), these particulars are offered in good faith and do not form part of any contract. All reasonable care has been taken to exclude any fixtures belonging to the vendor from the description of the property. However, the sale is subject to the vendor's right to remove, or request payment for, any such items, whether or not they are specifically mentioned in these details.

THIRD PARTY REFERRALS
Benjamins have established professional relationships with Ives and Co Solicitors, Rothera Bray Solicitors and Premier Mortgage Services and as such we refer clients to them for relative services. We receive a referral fee of £75.00-£200.00 for these recommendations. Further details are available on request.

MONEY LAUNDERING
As with all Estate Agents, Benjamins is subject to Money Laundering Regulations 2017 and will require all successful purchasers to provide two forms of identification for example a valid photocard driving licence or passport and recent utility bill (further identification may be requested if required) before solicitors are instructed by us. For further information please contact us.

Reference: SS001942


Disclaimer

These particulars are intended to give a fair description of the property but their accuracy cannot be guaranteed, and they do not constitute an offer of contract. Intending purchasers must rely on their own inspection of the property. None of the above appliances/services have been tested by ourselves. We recommend purchasers arrange for a qualified person to check all appliances/services before legal commitment.

Members
FREE instant valuation
Get your instant valuation!