0115 9371 713
Estate & letting agent based in Keyworth

Churchill Drive, Ruddington, Ruddington

£330,000

3 Bedrooms / 1 Bathrooms / 2 Reception

  • Semi Detached Family Home
  • Three Bedrooms
  • Beautifully Presented Throughout
  • Open Lounge Diner
  • South East Facing Garden
  • Semi Detached Family Home
  • EPC Rating - C
  • Council Tax Band - C

31 photos

  • Facebook  Twitter  Google +  Pinterest

*** GUIDE PRICE £330,000 - £335,000 ***

Benjamins are delighted to bring to market this beautifully presented three bedroom semi detached family home, situated on the ever popular Churchill Drive in the desirable village of Ruddington.

The accommodation is well laid out and briefly comprises a welcoming entrance hallway, a spacious lounge diner flooded with natural light, a fitted kitchen, three well proportioned bedrooms and a modern family bathroom.

Externally, the property enjoys a south east facing rear garden, fully enclosed by timber fencing and featuring a combination of patio seating and a generous lawn - ideal for both relaxing and entertaining. To the front, there is off road parking for two vehicles.

Ruddington is a highly sought after village, known for its strong community feel, excellent local amenities and popular school catchments. The village centre offers a range of independent shops, cafes, pubs and restaurants, along with convenient transport links to Nottingham City Centre, West Bridgford and surrounding areas. Nearby countryside walks and Ruddington Country Park further enhance the appeal of this desirable location.


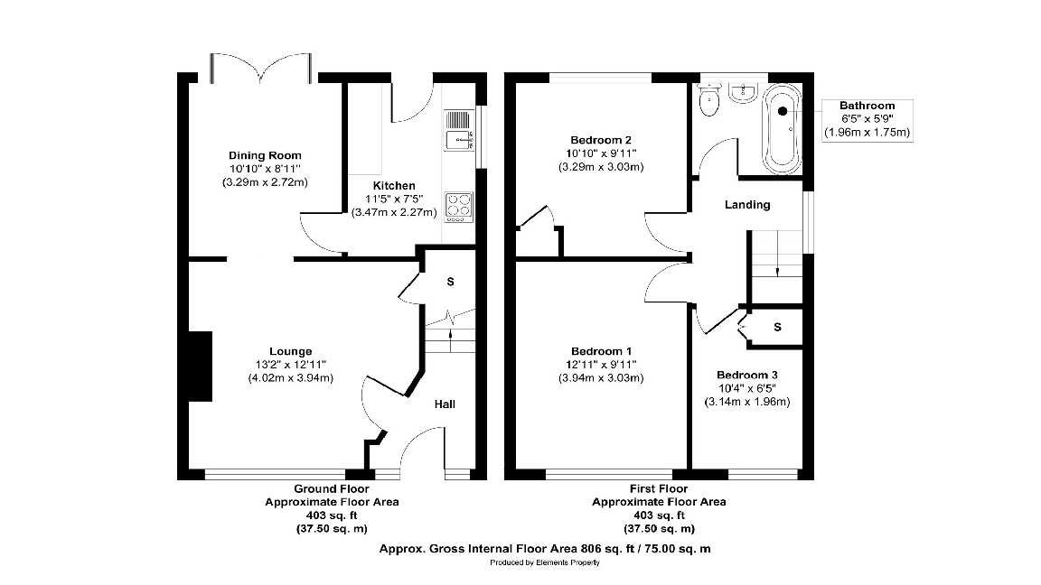
Lounge 4.02m (13' 2") x 3.94m (12' 11")
UPVC double glazed window to the front aspect, ceiling light fitting, feature electric fireplace, laminate effect flooring, open into the ;

Dining Room 3.29m (10' 10") x 2.72m (8' 11")
UPVC double glazed french doors to the rear aspect, ceiling light pendant, radiator, laminate effect flooring.

Kitchen 3.47m (11' 5") x 2.27m (7' 5")
UPVC double glazed obscure door to the rear aspect, UPVC double glazed window to the side aspect, ceiling light fitting, matching wall, drawer and base units, fitted oven with extractor hood above, built in pantry shelving, tile effect flooring.

Entrance Hallway
UPVC double glazed door to the front aspect, ceiling light fitting, radiator, laminate affect flooring and carpet to stairs.

Bedroom One 3.94m (12' 11") x 3.03m (9' 11")
UPVC double glazed window to the front aspect, ceiling light pendant, radiator, carpet underfoot.

First Floor Landing
UPVC double glazed window to the side elevation, ceiling light pendant, loft access hatch, carpet underfoot.

Bedroom Two 3.29m (10' 10") x 3.03m (9' 11")
UPVC double glazed window to the rear aspect, ceiling light pendant, built in cupboard, radiator, carpet underfoot.

Bathroom 1.96m (6' 5") x 1.75m (5' 9")
UPVC double glazed obscure window to the rear aspect, ceiling light fitting, hand wash basin with vanity unit below, low level flush WC, P shaped bath, radiator, laminate effect flooring.

Bedroom Three 3.14m (10' 4") x 1.96m (6' 5")
UPVC double glazed window to the rear aspect, ceiling light pendant, half height wall panelling, built in wardrobe, radiator, carpet underfoot.

Outside
Externally, the property enjoys a well maintained south east facing rear garden, fully enclosed by timber fencing. The garden features a pleasant combination of paved patio seating areas and a generous lawn, making it an ideal space for outdoor dining, entertaining guests, or enjoying family time.

To the front of the property there is a block paved driveway which provides off road parking for a number of vehicles and gives gated access to the rear. There is an adjacent lawned garden area and access to the entrance door.

Agent's Notes
DISCLAIMER
These sales particulars have been prepared by Benjamins at the instruction of the vendor. Please be aware that any services, equipment, or fittings referred to have not been tested, and as such, no guarantees or warranties are provided. Prospective purchasers are advised to carry out their own investigations regarding these aspects. While every effort has been made to ensure the accuracy of the information provided, including internal measurements (which are approximate), these particulars are offered in good faith and do not form part of any contract. All reasonable care has been taken to exclude any fixtures belonging to the vendor from the description of the property. However, the sale is subject to the vendor's right to remove, or request payment for, any such items, whether or not they are specifically mentioned in these details.

THIRD PARTY REFERRALS
Benjamins have established professional relationships with Ives and Co Solicitors, Rothera Bray Solicitors and Premier Mortgage Services and as such we refer clients to them for relative services. We receive a referral fee of £75.00-£200.00 for these recommendations. Further details are available on request.

MONEY LAUNDERING
As with all Estate Agents, Benjamins is subject to Money Laundering Regulations 2017 and will require all successful purchasers to provide two forms of identification for example a valid photocard driving licence or passport and recent utility bill (further identification may be requested if required) before solicitors are instructed by us. For further information please contact us.

Reference: SS001951


Disclaimer

These particulars are intended to give a fair description of the property but their accuracy cannot be guaranteed, and they do not constitute an offer of contract. Intending purchasers must rely on their own inspection of the property. None of the above appliances/services have been tested by ourselves. We recommend purchasers arrange for a qualified person to check all appliances/services before legal commitment.

Members
FREE instant valuation
Get your instant valuation!