0115 9371 713
Estate & letting agent based in Keyworth

Acer House, Widmerpool, Nottingham

£1,350 per month

3 Bedrooms / 2 Bathrooms / 1 Reception

  • Premium & Private Location
  • BRAND NEW THROUGHOUT
  • Three Bedrooms
  • Open Plan Living
  • Finished To A High Stanard
  • Private Courtyard
  • Off Road Parking
  • Council Tax Band A

26 photos

  • Facebook  Twitter  Google +  Pinterest

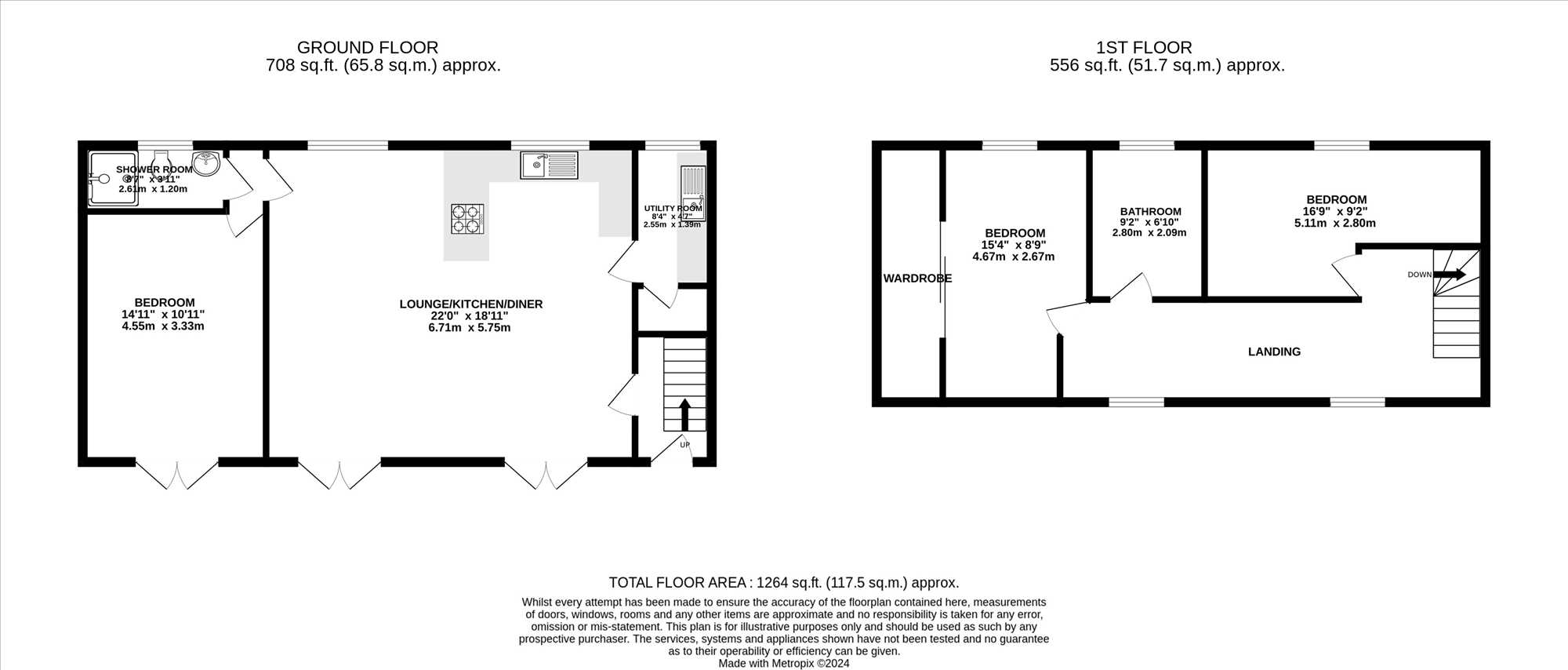
Benjamins are pleased to welcome to the market this STUNNING THREE BEDROOM BARN CONVERSION , nestled in the heart of the tranquil village of Widmerpool. Accessed via a private driveway that serves only three exclusive residences, this property offers a sense of PRIVACY AND LUXURY.

Finished to a high standard throughout with UNDERFLOOR HEATING, this brand new property briefly comprises; Entrance Hall + Open Plan Kitchen Diner with Living Space, Integrated Zanussi Microwave and Oven, Zanussi induction hob, Integrated Neff dishwasher, Integrated Fridge Freezer + Living room/ Master Bedroom + Downstairs Shower Room + Two Bedrooms upstairs + Family Bathroom with Shower over the Bath. Outside offers a Low Maintenance and Extremely Private Seating Area and Off Road Parking.

Widmerpool is a highly sought after village in South Nottingham, just 10 miles from the City Centre, well situated for commuters to Leicester and Grantham. The nearby Village of Keyworth is just a 5 minute drive for all your local amenities.

EPC - D
Council Tax Band - A
Security Deposit - £1,550.00
Disclaimer - The broadband is included in the rental

A Refundable Holding Deposit of £300.00 is payable to apply for and reserve the property which will later go towards the first months rent subject to a successful application. If the application is unsuccessful as the result of erroneous or misleading information on an application, or 14 days pass with no communication to progress an application the Holding Deposit is non-refundable.

Kitchen Diner
A large open plan kitchen diner with living space, a range of matching wall and base units, integrated Zanussi microwave and oven, Zanuddi induction hob, integrated Neff dishwasher, integrated fridge freezer, inset sink with mixer tap over. Porcelain tiled flooring, underfloor heating, upvc double glazed french doors to front aspect x2, upvc double glazed window to rear aspect and ceiling spotlights.

Utility Room
A range of matching wall and base units, inset sink with mixer tap over, plumbing for washing machine and ceiling spotlights.

Shower Room
Upvc double glazed window to rear aspect, three piece white suite comprising; low level wc, hand wash basin and corner shower cubicle. Marble effect tiled flooring and partly tiled walls. chrome heated towel rail, extractor fan and ceiling spotlights.

Living Room/Master Bedroom
Upvc double glazed french doors and windows to front aspect, tiled flooring, underfloor heating and ceiling light pendant.

Bedroom
Velux window, carpet to flooring, built in storage cupboard and ceiling light pendant.

Family Bathroom
Three piece white suite comprising low level wc, wash basin, bath with shower screen and shower over, tiled flooring and partly tiled walls, chrome heated towel rail, velux window and ceiling light point.

Bedroom
Velux window, carpet to flooring and ceiling light pendant.

Coutryard
A private courtyard sun trap, perfect for a seating area.

Front Outside
A gravelled driveway providing off road parking for multiple vehicles.

Reference: SS001858


Disclaimer

These particulars are intended to give a fair description of the property but their accuracy cannot be guaranteed, and they do not constitute an offer of contract. Intending purchasers must rely on their own inspection of the property. None of the above appliances/services have been tested by ourselves. We recommend purchasers arrange for a qualified person to check all appliances/services before legal commitment.

Members
FREE instant valuation
Get your instant valuation!