0115 9371 713
Estate & letting agent based in Keyworth

LAND AT High View Avenue, Keyworth, Nottingham

£525,000

4 Bedrooms / 2 Bathrooms / 2 Reception

  • RESIDENTIAL LAND/DEVELOPMENT OPPORTUNITY
  • PLANNING APPROVED
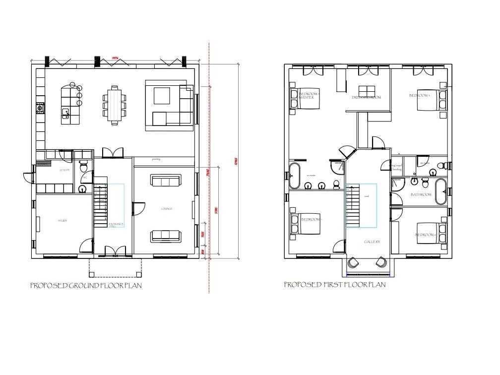
  • FULL ARCHITECT DRAWINGS AVAILABLE
  • 1/3 ACRE PLOT
  • PRIVATE 'NO THROUGH ROAD'
  • PREMIUM LOCATION
  • 3/4 BED DETACHED BUNGALOW ON SITE
  • 170 FT GARDEN

1 photos

  • Facebook  Twitter  Google +  Pinterest

A prime RESIDENTIAL LAND/DEVELOPMENT OPPORTUNITY within one of the most sought after PRIVATE 'NO THROUGH ROAD' locations off Nicker Hill, Keyworth, on the outskirts of Nottingham which extends to approximately 1/3 AN ACRE.

Currently occupying on this highly regarded location is this substantial bungalow that offers huge potential to develop the plot to create a large family home (PLANNING APPROVED). The property enjoys an established 170 ft South East facing rear garden.

The bungalow offers generously proportioned accommodation throughout and has driveway parking and a detached garage. Many neighbouring properties on the road have been developed and set a precedent with the planning.

Keyworth is a well regarded south Nottinghamshire village offering a wide range of services and amenities including a medical centre, dentist and various supermarkets. The village also offers excellent schooling for both primary and secondary levels. For the commuter there is ease of access to Nottingham city centre as well as various road links including the A52, A46 and M1 motorway.

Viewing advised to fully appreciate the opportunity on offer.

The Building
The existing site comprises a single detached bungalow with 3/4 Bedrooms and large garden to the rear.

Location
The site is located on the private road of High View Avenue, in the village of Keyworth, with access directly off Nicker Hill. Keyworth is a village lying approximately 8 miles south of Nottingham City Centre and benefits from good access to Nottinghamshire and Leicestershire via the A60 and A46. The Site is ideally located for easy access to the M1 and A1 road networks, with East Midlands airport and train links to London St Pancras in nearby Loughborough and Nottingham.

Planning Note
Full planning permission was granted by Rushcliffe Borough Council on 26th August 2020 for: Demolition of existing dwelling and replacement with new dwelling and detached garage (resubmission of 19/01827/FUL)

A copy of the permission is available from the Selling Agents, telephone 0115 9371713

Plans
The plans included with these particulars are illustrative only

Services
We understand that mains water, sewerage and electricity, gas are available at the site.

Existing Detached Bungalow
Briefly comprising;

+ Entrance Porch
Wooden door with front and side aspect windows, tiled floor, door leading to entrance hall

+ Entrance Hall
Carpeted, radiator, pendant light fitting, doors lead off to the living room, dining area and bedrooms

+ Dining Area
Engineered wood flooring, pendant light fitting, Telephone point, opening to living room,

+ Living Room
Double glazed patio doors to the rear aspect, small double glazed window to side aspect, gas fireplace with hearth and surround, Engineered wood flooring, two vertical column radiators, ceiling light, two wall mounted lights, TV aerial sockets.

+ Kitchen.
Double glazed windows to the front & side aspect, base and wall units with working surfaces incorporating stainless steel one and a half sink unit, radiator, ceiling panel lighting, breakfast bar, double ovens and ceramic induction hob with extractor over, integrated fridge/freezer.

+ Utility
Double glazed Upvc door to rear aspect, ceiling light, fitted base and wall units with working surfaces over, plumbing for washing machine.

+ Bathroom
Two piece suite comprising panelled bath, pedestal hand wash basin, double glazed window to the side aspect, tiled walls and flooring, towel radiator, door leading to separate wc with towel radiator.

Continued..
+ Bedroom 1
Double glazed window to the front aspect, built in wardrobe, pendant light fitting, carpet, radiator.

+ En suite
Ensuite shower room comprising of enclosed shower cubicle with electric shower, mounted wash hand basin, low flush wc, double glazed window to side aspect, fully tiled walls

+ Study/Bedroom 2
Originally built as a bedroom, but currently utilised as a study. Double glazed window to the front aspect, carpet, ceiling lights, radiator.

+ Bedroom 3
Double glazed window to the front aspect, pendant light fitting, carpet, radiator.

+ Bedroom 4/Games Room
Pendant light fitting, carpet, radiator.

Block paved driveway providing car standing for several cars.

Rear Garden is mainly laid lawn, variety of mature hedgerows and fruit trees from and old orchard, small patio area and garden shed. The rear South East facing rear garden extended to approx 170 ft

Additional
Council Tax is band E, being £2,513 for 2019/20.

Method of Sale
The land is being sold by Private Treaty, purchased as a whole plot

Money Laundering
To comply with The Protecting Against Money Laundering and The Proceeds of Crime Act 2002 any successful purchaser/purchasers will be asked to provide proof of identity and we will therefore need to take copies of a passport/photo driving licence and a recent utility bill (not more than three months old). We will need this information before Solicitors are instructed.

Reference: SS000840


Disclaimer

These particulars are intended to give a fair description of the property but their accuracy cannot be guaranteed, and they do not constitute an offer of contract. Intending purchasers must rely on their own inspection of the property. None of the above appliances/services have been tested by ourselves. We recommend purchasers arrange for a qualified person to check all appliances/services before legal commitment.

Members
FREE instant valuation
Get your instant valuation!