0115 9371 713
Estate & letting agent based in Keyworth

Lowlands Drive, Keyworth, Nottingham

£375,000

3 Bedrooms / 2 Bathrooms / 2 Reception

  • Three Bedroom Detached Bungalow
  • Chain Free
  • South-Easterly Facing Garden
  • Modern Breakfast Kitchen
  • Conservatory
  • Combi Boiler
  • Additional WC
  • Well Presented Throughout

1 photos

  • Facebook  Twitter  Google +  Pinterest

Benjamins are delighted to bring to the market this well presented three bedroom detached bungalow situated in the sought-after South Nottingham village location, the property is within walking distance to local shops, amenities and the main bus route. The property has been fully modernised throughout with a brand new boiler and recently refurbished bathroom suite as well as being fitted with a range of contemporary kitchen units with built-in appliances, additional separate W/C. The property benefits from full double-glazing and gas central heating.

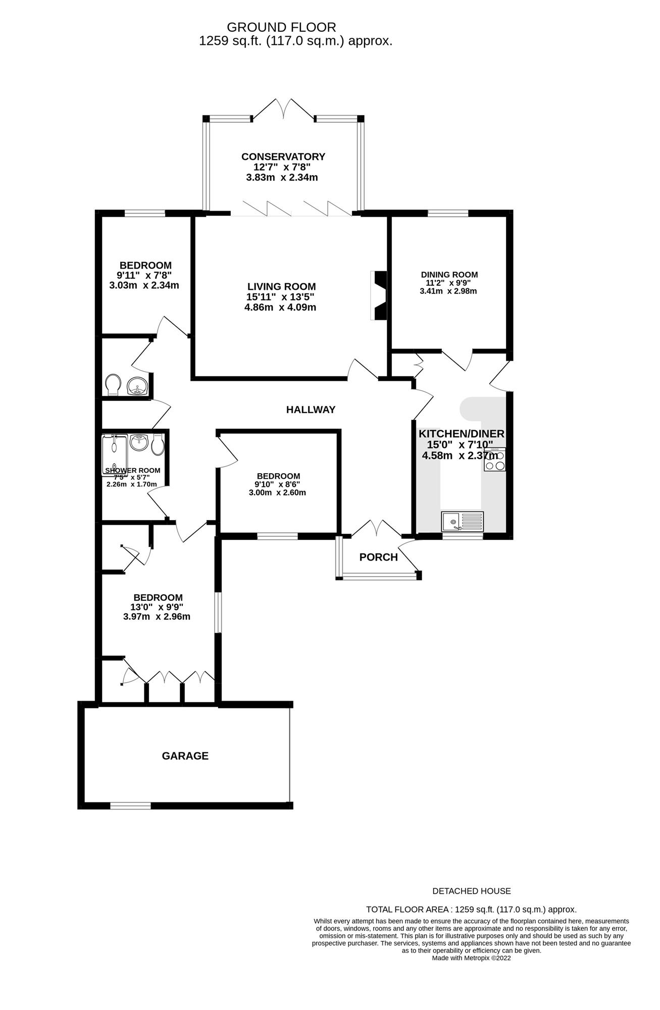
In brief, the property comprises of entrance hallway, inner hallway area, lounge, conservatory, dining room, modern breakfast kitchen, three bedrooms, family shower room, additional separate W/C. Off-road parking to the front of the property, single garage and a sunny south-easterly aspect.

Internal viewing is highly recommended to appreciate the size and location of the property on offer.

Entrance Porch
UPVC double glazed door and windows into entrance porch. Double doors into entrance hallway.

Entrance Hallway
Double doors from porch into entrance hallway, arch leading into a inner hallway area where there is access to the loft. Boiler cupboard housing the wall-mounted gas central heating combination boiler, with fitted shelving. Doors off the inner hallway gives access to all three of the bedrooms, family bathroom and separate wc.

Living Room 4.86m (15' 11") x 4.09m (13' 5")
Bi-fold patio doors which open out on to the conservatory, feature fireplace, wall lights, carpet to flooring & door into the dining room.

Conservatory 3.83m (12' 7") x 2.34m (7' 8")
Accessed from the living room, makes a lovely additional room in the property. Double doors onto the rear garden.

Breakfast Kitchen 4.58m (15' 0") x 2.37m (7' 9")
Modern breakfast kitchen with a range of cream front wall, draw and base units with granite surfaces over, inset stainless steel sink unit with mixer tap. Built-in NEFF double electric oven with warming drawer, NEFF four ring electric hob and extractor hood over. Plumbing and space for washing machine and dishwasher, space for free standing fridge and freezer, ceiling spotlights, towel rail radiator, UPVC double glazed window to front aspect and door to side aspect.

Dining Room 3.41m (11' 2") x 2.98m (9' 9")
UPVC double glazed window overlooking the rear aspect, wall lights, radiator and carpet to flooring. Door into the kitchen & living room.

Inner Hallway
Doors off to three bedrooms, shower room & WC. Airing cupboard housing combi boiler.

Bedroom One 3.97m (13' 0") x 2.96m (9' 9")
UPVC double glazed window to the front aspect, built-in fitted wardrobes, drawers and overhead storage cupboards, ceiling light fitting, radiator & carpet to flooring.

WC
Built in hand wash basin and WC. Storage cupboard above & white towel rail radiator.

Bedroom Two 3.00m (9' 10") x 2.60m (8' 6")
UPVC double glazed window to the front aspect, built-in overhead storage cupboards, ceiling light fitting, radiator & carpet to flooring.

Shower Room 2.26m (7' 5") x 1.70m (5' 7")
Shower cubicle with built in hand wash basin and WC. Storage cupboard above with mirror light over & white towel rail radiator.

Bedroom Three 3.03m (9' 11") x 2.34m (7' 8")
UPVC double glazed window to the rear aspect, ceiling light fitting, radiator & carpet to flooring.

Outside
To the front of the property there is a brick paved driveway, providing off-road parking, a gravelled front boarded garden with a variety of shrubs, plants and perennial flowers. The driveway gives access to a single brick built garage. Gated side access leads through to the rear garden, which enjoys a sunny south-easterly aspect, with a slabbed patio, lawned garden with a variety of shrubs & plants.

Council Tax
Rushcliffe Borough Council Tax Band D

Reference: SS001165


Disclaimer

These particulars are intended to give a fair description of the property but their accuracy cannot be guaranteed, and they do not constitute an offer of contract. Intending purchasers must rely on their own inspection of the property. None of the above appliances/services have been tested by ourselves. We recommend purchasers arrange for a qualified person to check all appliances/services before legal commitment.

Members
FREE instant valuation
Get your instant valuation!